Linkside at Las Colinas

Cadence Homes

Linkside at Las Colinas

Photography by Davies Imaging Group
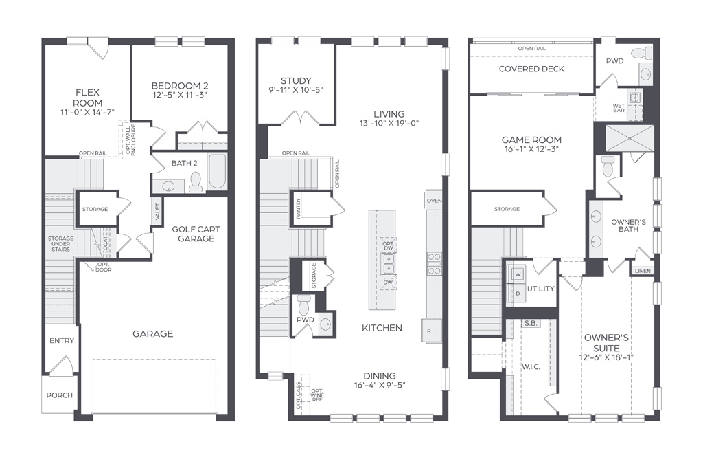
Product type
Townhome
PROJECT STATS
Project Stats close
Price as of April 2025
$899,990/ starting at
Square footage (min)
2,667-2,758
Lot size
/ square feet average
Density
7
Sales start date
December 2024
Total homes
75
Sales as of
17 as of April 2025
HOA
Target market
Retirees and 2nd home buyers
Unique selling position
These luxury townhomes offer a chance to live in a high-end community with views of a golf course with a rough in for a future elevator

Consultants

Builders

Architects

Interior designers

Landscape Architects

Developers

JBREC Consultant

Bryan Lawrence
Senior Vice President
Dallas, TX

Location

4309 Riviera Lane
Phone number (808) 223-6166
Region Texas
State Texas
City Irving
Zip Code 75038
Skip Google Map